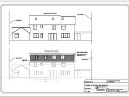
Loft conversions and dormer/hip to gable 

Survey fee (£75) refunded if commissioned for drawings) 

Planning drawings £1250 following our survey 

Planning drawings from clients own measurements and photos. £1000 

Building Regulation Drawings £1250

Assistance with planning application (pre-app and/or full) £50*

Structural  calculations are not included and client must employ their own if required by building control 

 * Planning and Building Control fees are additional and  paid separately to the Council by client.

 

We need your consent to load the translations

We use a third-party service to translate the website content that may collect data about your activity. Please review the details in the privacy policy and accept the service to view the translations.